railroad cottage kitchen update

photo renders + design set

This project was a fun one, taking an early 1900’s ‘railroad cottage’ in historic Ashland, Oregon— whose low-ceilinged kitchen was originally tacked on & long since updated—giving it a functional kitchen, dining nook, laundry and bathroom worthy of the high-ceilinged, detailed, historic home.

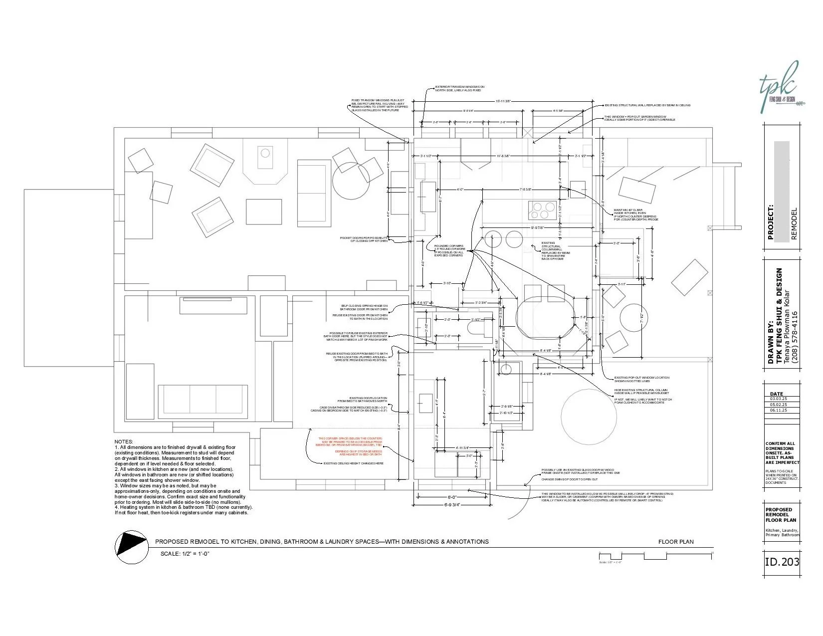
The owners wanted to increase the visual & physical connection to their sweet back yard, which originally was accessed through a small laundry, pantry area, and showcase their views of Mt. Ashland. They wanted their kitchen to be separate from the rest of the living spaces, but we were able to expand the entrance for guests to flow through + allow light to be shared between the spaces with the transom windows that highlight the lovely tall ceilings.

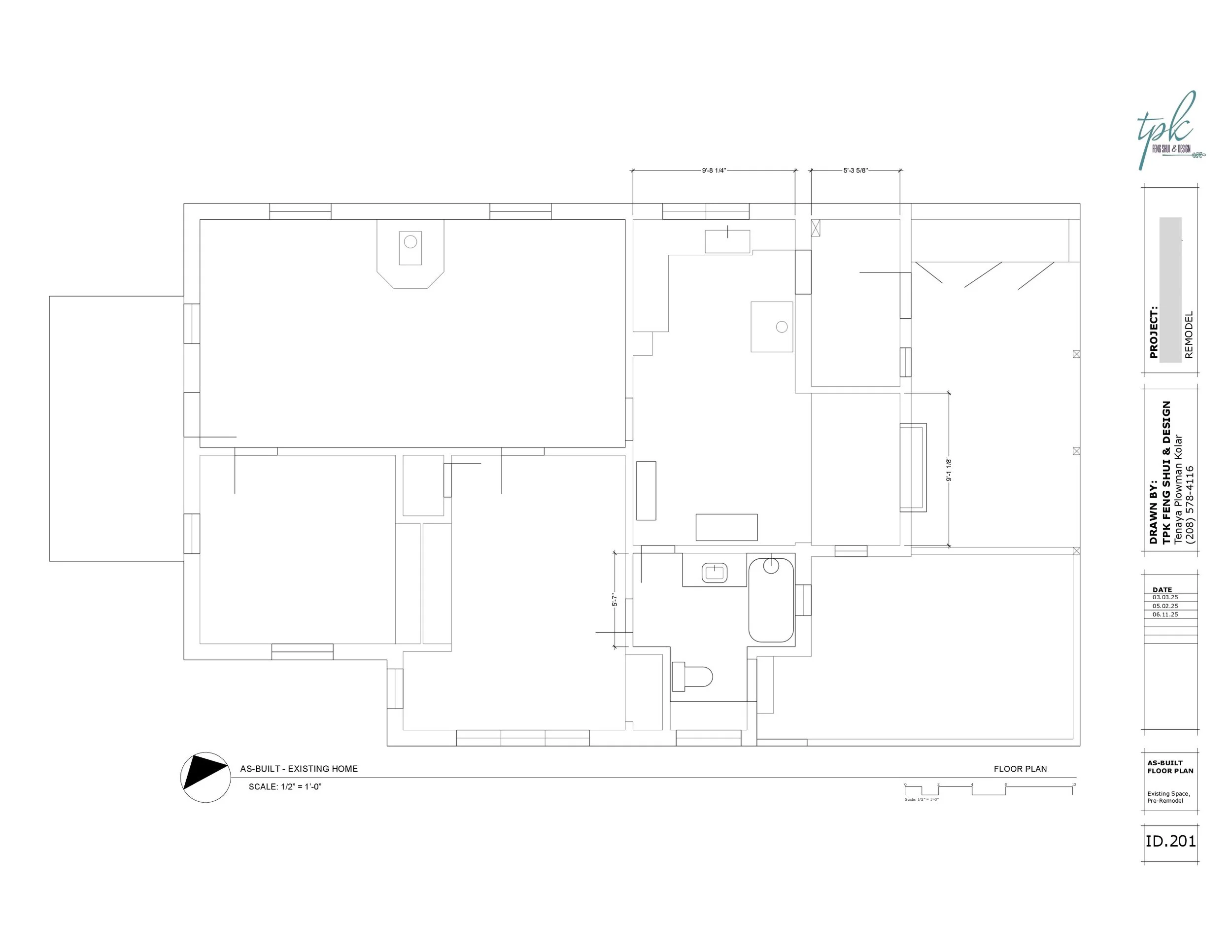
For remodel projects—particularly those further afield where Tenaya may not be onsite regularly throughout construction—TPK creates clear design documents for construction that help provide answers to many of the questions that arise throughout construction.

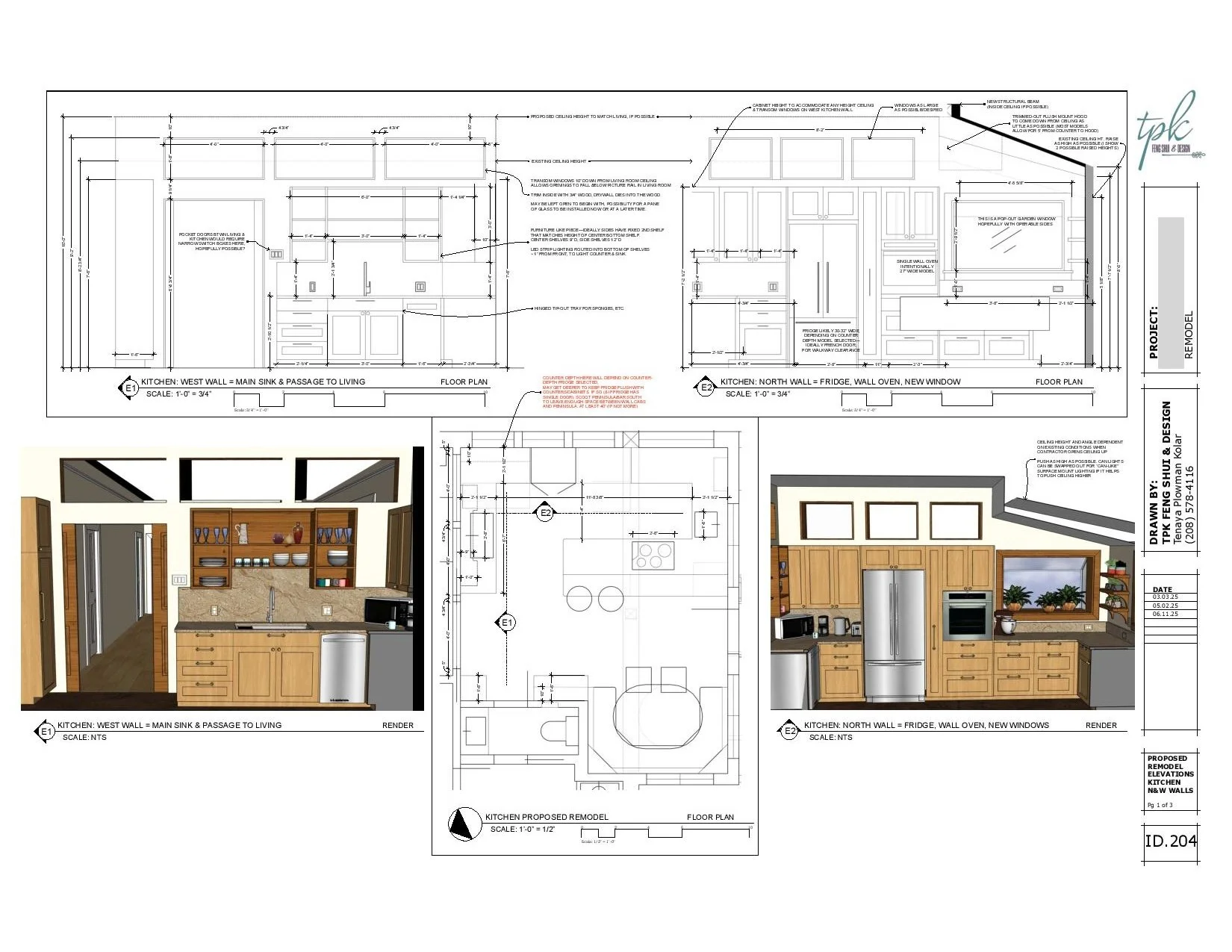
This comprehensive Design Set is shown below and includes:

  1. As-built floor plans—created through site visits & comprehensive photographs

  2. Finalized remodel & electrical floor plans—after working through a variety of options for the remodel area based on how clients want to use the space & their lifestyle needs

  3. 3D Renders of the space—for better client visualization and important information on how areas interact with one another. This helps ensure clear design intent and ease of direction throughout construction.

  4. Photo-realistic renders of the space—taking a 3D render & turning it into a realistic photograph—for clarity of design intent & client visualization (as seen above)