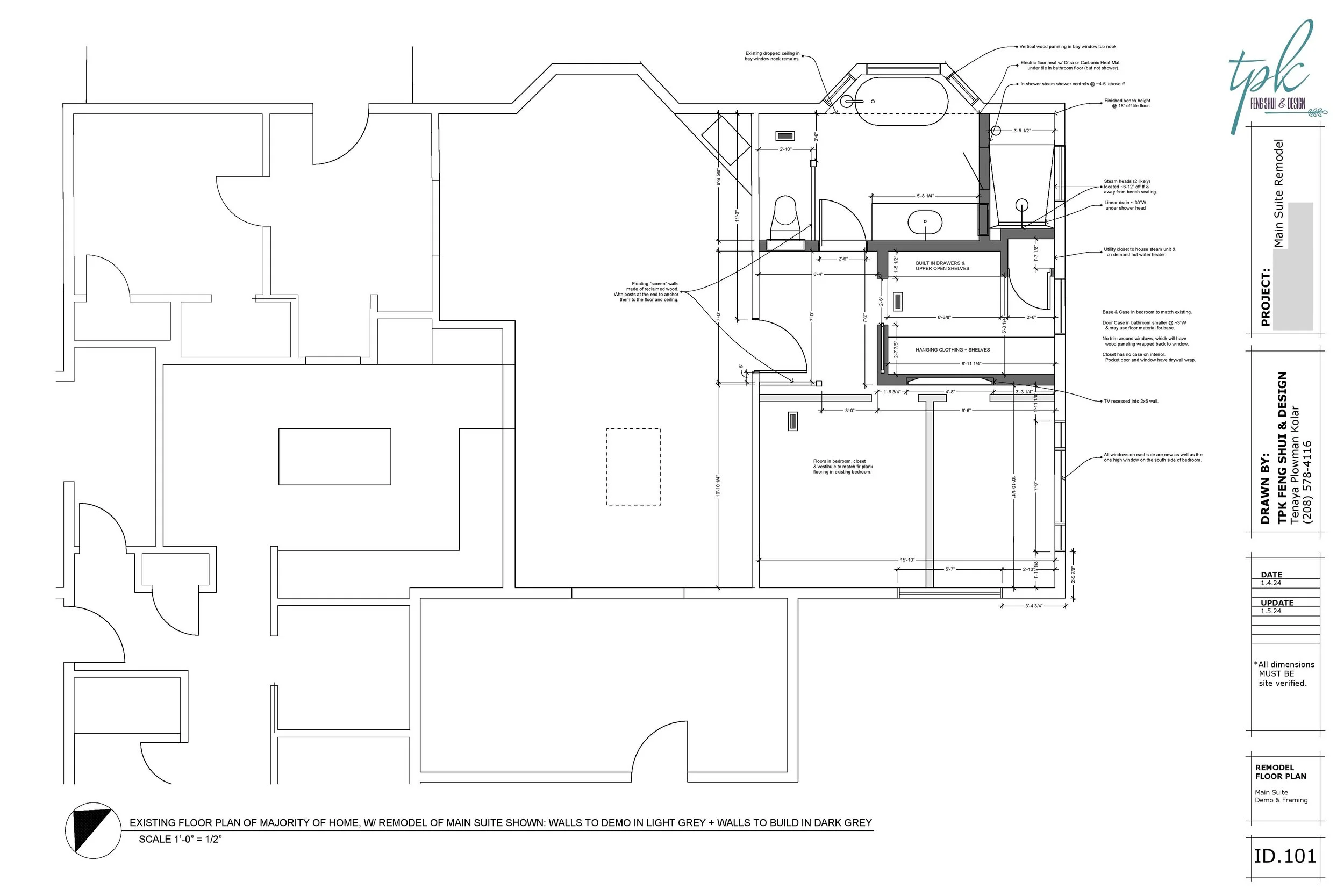
MAIN SUITE

REMODEL FOR PRIVACY

Nothing feels less private than a main suite entrance that comes right off the living area—from the kitchen counter, a direct view of the bed.

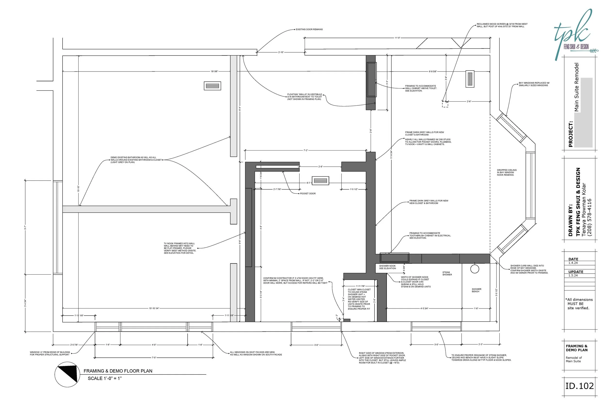
This home had a major, recent kitchen remodel that united two disparate halves from a previous addition in a lovely way. Now the task was to take the main suite and make it private and much more functional, without changing the location of the door.

The bathroom had to be re-plumbed entirely, which enabled us to easily justify swapping the bedroom space to the back of the home. Not only did this move the new plumbing closer to the source, but it helped the bedroom occupy a much more private and fitting location for the main bed. Further from the street, this creates a buffer that is much quieter for sleeping and eliminates visibility into your private sleeping zone.

The existing walk in closet housed the water heater and was not nearly large enough. So we wanted to prioritize a larger and more functional closet as well.

With the updated plans, we were able to create an entrance vestibule between the living room and the main suite. With a wood paneled privacy panel between this vestibule and sleeping area, the bedroom became a private retreat.

The walk in closet added a window for light, and a beautiful built-in floor to ceiling drawer and cubby space for function and beauty, since this space was visible to the entrance when the door was open. The opposing closet wall provides enough hanging and shelving space to accommodate the couple.

With space at a premium, we echoed the wooden wall panel in the bathroom to create privacy around the toilet, while allowing light into the entire space.

The freestanding bathtub was able to occupy the existing bay window pop-out to create a visual and functional statement upon entering the bathroom, with cafe curtains and up/down blinds for added privacy. The small but comfortable shower space was perfect for the steam shower the couple planned to install.